Skip to main content

Favourites

Broadstairs

Kent
Sea Lounge, 27 Albion Street, Broadstairs, Kent, CT10 1LU
£200,000
9
7

EPCs

Click the image to see more

Property Description

The Sea Lounge Bar & accommodation in the vibrant heart of Broadstairs, is an exceptional commercial property and a remarkable investment opportunity.

This popular establishment, boasts a modern flair, making it a favourite among locals & visitors. With a large bar, commercial kitchen, internal & external seating, games areas & views looking over Viking Bay, not only serves as a delightful social hub but also offers 7 opulent guest rooms There are 2 garden suites, 1 superior & 4 double rooms, all with ensuite facilities, providing a lavish & comfortable accommodation. There is a private garden at the rear of the property for the guests to relax & enjoy the newly finished outside bar & BBQ kitchen.

Additionally, there is a private owner’s apartment, ensuring that the new proprietor can enjoy both business and personal space.

Located in the lively & vibrant part of town, just a 30 second walk to the beautiful blue flag beaches, it’s an ideal location for both locals & holiday makers all year round. With the option to provide a full menu, event space & accommodation, there is huge potential to expand the business.

Broadstairs offers so much to all it’s visitors with a wealth of restaurants, quaint café’s, busy nightlife, live entertainment and many events throughout the year; summer fireworks, funfairs, Dickensian festivals & the ever popular Folk Week.

Neighbouring Margate and Ramsgate can be accessed easily, a 5 min walk to the train station or by the frequent buses. There is a coach stop, transport links to London, Canterbury, Dover & the Channel Tunnel. Good motorway links too

This leasehold business is being offered with a new 20-year lease, allowing the new owners to establish themselves firmly in this thriving location. With its prime position and established reputation, the Sea Lounge Bar is an ideal opportunity for those looking to invest in a lucrative venture in Kent’s most sought-after coastal town.

Leasehold
Business Rate Value £20,600

Key Features

Property Features

  • Commercial Bar and guest accommodation
  • Leasehold
  • Sought after location
  • Establish weekly entertainment
  • Staff apartment
  • Outside entertaining area
  • Business rate apply
  • New lease available

Property Features

  • Commercial Bar and guest accommodation
  • Leasehold
  • Sought after location
  • Establish weekly entertainment
  • Staff apartment
  • Outside entertaining area
  • Business rate apply
  • New lease available

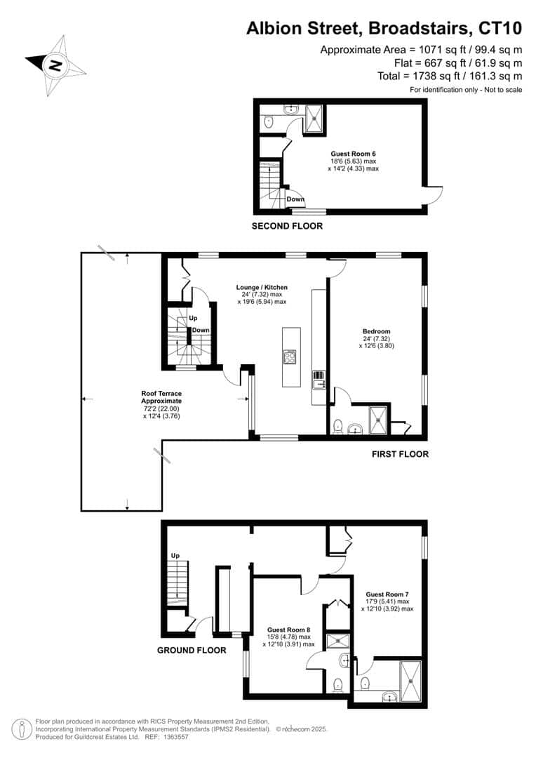
Floor Plans

Floorplans

Similar Properties

  • The Laurels, Manston Business Park, Ramsgate

    £195,000
    2,000 Sq Ft
    *Ready Early 2026*Unlock endless possibilities for your business at The Laurels, Manston Business Park, located at the heart of Thanet in East Kent just 15 miles from the M2 motorway.With easy access to the A299 Thanet Way, this prime location provides a link with Ramsgate New Port only 5 miles east...
  • The Laurels, Manston Business Park, Ramsgate

    £195,000
    2,000 Sq Ft
    *Ready Autumn 2025*Unlock endless possibilities for your business at The Laurels, Manston Business Park, located at the heart of Thanet in East Kent just 15 miles from the M2 motorway.With easy access to the A299 Thanet Way, this prime location provides a link with Ramsgate New Port only 5 miles eas...
  • The Laurels, Manston Business Park, Ramsgate

    £195,000
    *Ready Spring 2026*Unlock endless possibilities for your business at The Laurels, Manston Business Park, located at the heart of Thanet in East Kent just 15 miles from the M2 motorway.With easy access to the A299 Thanet Way, this prime location provides a link with Ramsgate New Port only 5 miles eas...
  • Maple Leaf Business Park, Manston, Ramsgate

    £185,000
    2,000 Sq Ft
    Introducing an exceptional opportunity to own a well-appointed light industrial unit located within the highly sought-after location.This well-presented unit offers versatile space suitable for a range of business uses. The ground floor provides an open-plan workshop or storage area, complete with l...
  • The Laurels, Manston Business Park, Ramsgate

    £195,000
    2,000 Sq Ft
    *Ready March 2026*Unlock endless possibilities for your business at The Laurels, Manston Business Park, located at the heart of Thanet in East Kent just 15 miles from the M2 motorway.With easy access to the A299 Thanet Way, this prime location provides a link with Ramsgate New Port only 5 miles east...

Subscribe to our email list!

Get the latest updates, exclusive property listings, and expert advice. Don't miss out – sign up to our newsletter today!

EVERY HOME SHOULD BE
A SAFE HOME

EVERY HOME
SHOULD BE
A SAFE HOME

If you are in immediate danger, call 999
If you can’t speak, cough or tap the handset then press 55 on your phone
– the police will know it’s an emergency

For non-emergency support:
Monday, Tuesday, Wednesday 9:30 – 11:30am, 12:30 – 2:30pm
Thursday, Friday 9:30 – 11:30am

For help outside of these times call the free 24/7 national helpline on:
0808 2000 247

If you would like to see someone for support, their one-stop shops offer in-person and virtual support with a range of services

EVERY HOME SHOULD BE
A SAFE HOME.

EVERY HOME
SHOULD BE
A SAFE HOME

If you are in immediate danger, call 999
If you can’t speak, cough or tap the handset then press 55 on your phone
– the police will know it’s an emergency

For non-emergency support:
Monday, Tuesday, Wednesday 9:30 – 11:30am, 12:30 – 2:30pm
Thursday, Friday 9:30 – 11:30am

For help outside of these times call the free 24/7 national helpline on:
0808 2000 247

If you would like to see someone for support, their one-stop shops offer in-person and virtual support with a range of services

This will close in 0 seconds

Our New Canterbury Branch

New branch, same excellence


24 Lower Bridge Street,
Canterbury,
Kent CT1 2LG

Our New Canterbury Branch

New branch, same excellence


24 Lower Bridge Street,
Canterbury,
Kent CT1 2LG

Vicki Wilkinson
Administrative Manager

01843 272200
vicki@guildcrestestates.co.uk

1 The Laurels,
Manston Business Park,
Ramsgate,
Kent CT12 5NQ

Vicki has spent most of her working career in customer service and hospitality and loves liaising with customers face to face.

Vicki has joined the Guildcrest team part time to manage all the administrative responsibilities.

In her spare time Vicki loves spending time with her family and many pets and enjoys socialising with her friends, volunteering and gardening.

What our clients say...

Communication was always prompt whether in person or over the phone. Happy to go the extra mile.

Review by Mayuri Patel